Zur Navigation wechseln Zum Inhalt wechseln Zum Footer wechseln

Neubaugebiet in Wulfertshausen Gemeinde Friedberg. Die ersten Nachbargebäude stehen bereits.

ImmoNr
PAYA1722023
Objektart
Grundstück
Objekttyp
Wohnen
Vermarktungsart
Kauf
Ort
Friedberg
Land
Deutschland
Grundstücksgröße
ca. 633 m²
Kaufpreis
424.500,00 €
Außen-Provision
2,38 % inklusiv MwSt. 19 %

Zur Immobilie

Idyllisches Baugrundstück in bevorzugter Lage.

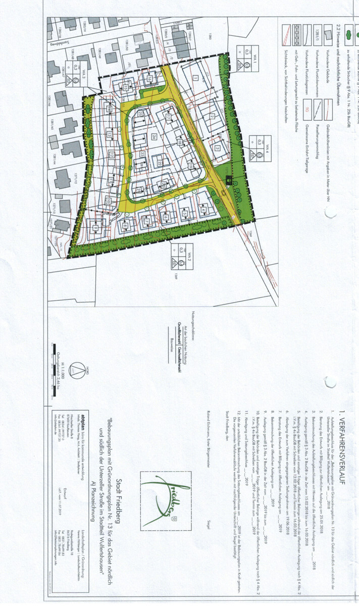
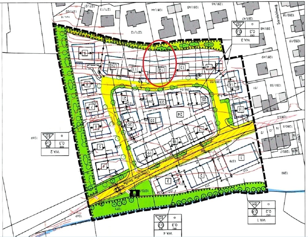
Es handelt sich um das Neubaugebiet an der Unterzeller Straße in Wulfertshausen. Die ersten Bauherren haben bereits begonnen zu bauen. Es wird fleißig miteinander Kommuniziert.

Nun stehen die ersten Häuser bereits und man kann sich eine besseres Bild der Umgebung mache.

Für das angebotenen Grundstück besteht ein rechtskräftiger Bebauungsplan, welcher sich derzeit in der Umsetzung befindet und dabei sowohl eine Einzelhaus-, als auch Doppelhausbebauung ermöglicht. Beide Möglichkeiten sind für dieses Grundstück im Bebauungsplan vorgesehen.

Zum Kaufpreis kommen noch Erschließungskosten mit dazu, welche über einen städtebaulichen Vertrag zwischen dem Eigentümer und der Stadt Friedberg bisher noch anfallen. Hausanschlusskosten trägt der Käufer.

Diese Kosten werden bei ca. 55.000 EUR liegen.

– Hervorrade Hanglage am höchsten Punkt des Neubaugebietes.

Nutzungsart
Wohnen

In einem bevorzugten Stadtteil der alten Herzogstadt Friedberg in Bayern liegt dieses herrliche Baugrundstück. Hier haben Sie die Natur und Ruhe direkt vor der Haustüre, müssen dabei aber auf die Annehmlichkeiten einer sehr guten Infrastruktur mit allen Versorgungseinrichtungen, wie verschiedene Ärzte, unterschiedlicher Fakultäten, Kreiskrankenhaus, sowie Kindergärten, Schulen (Grund-, Mittel-, Realschule und Gymnasium), im nahen Umkreis und einer sehr guten Verkehrsanbindung, nicht verzichten.

Eine Vielzahl von verschiedensten Vereinen heißt Sie in Friedberg und den Ortsteilen herzlich willkommen und ermöglicht Ihnen eine schnelle Integration in eine harmonische Gemeinschaft.

Die Herzogstadt Friedberg mit seiner historischen Altstadt lädt Sie mit seinen vielen Cafe's und Gaststätten zum Verweilen ein. Eine große Anzahl an Einzelhandelsgeschäften verschiedenster Branchen sorgt für die notwendige Versorgung mit Allem was zum täglichen Leben dazu gehört.

Ihre Erholung genießen Sie bei ausgedehnten Spaziergängen in den Wäldern direkt am Baugebiet oder am nahegelegenen Friedberger Baggersee mit Wasserskianlage, welchen Sie bequem mit dem Fahrrad erreichen können!

Die Erschließungsmaßnahmen sind weitgehende abgeschlossen.
Die ersten Bauherren haben bereits begonnen zu bauen.

Die Maklercourtage für den Käufer beträgt 2 % aus dem Kaufpreis zuzüglich MwSt. (19 %), somit gesamt 2,38 %. Der Immobilienmakler hat einen provisionspflichtigen Maklervertrag mit dem Verkäufer abgeschlossen. (Maklervertrag gem. § 656c BGB).

Rufen Sie uns gerne an, wir beraten und begleiten Sie gerne!


HAFTUNG: Wir weisen darauf hin, dass die von uns weitergegebenen Objektinformationen, Unterlagen, Pläne etc. vom Verkäufer bzw. Vermieter stammen. Eine Haftung für die Richtigkeit oder Vollständigkeit der Angaben übernehmen wir daher nicht. Es obliegt daher unseren Kunden, die darin enthaltenen Objektinformationen und Angaben auf ihre Richtigkeit hin zu überprüfen. Alle Immobilienangebote sind freibleibend und vorbehaltlich Irrtümer, Zwischenverkauf- und Vermietung oder sonstiger Zwischenverwertung.

Ihr Ansprechpartner

Parwis Yadegari

Herr Parwis Yadegari

PAYA-Immobilien

Tel.:
+ 49 8233 7945160
E-Mail:
info@paya-immobilien.de

Augsburger Str. 19
86415 Mering

Ihre Anfrage zu der Immobilie „Neubaugebiet in Wulfertshausen Gemeinde Friedberg. Die ersten Nachbargebäude stehen bereits.“ (PAYA1722023)

* Pflichtfelder